Products

Cement Silos

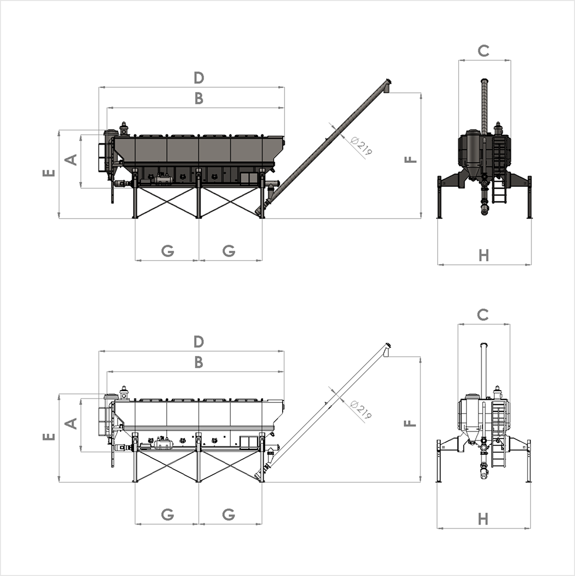
Mobile Horizontal Silo – Standard

Horizontal cement silos provide a practical, flexible, and cost-effective solution for the storage and controlled dosing of cement and other powdered materials. With their compact and modular design, they eliminate the need for civil works, foundations, or complex assembly procedures. This makes them ideal for both mobile and stationary concrete plants, as well as construction sites with limited working space or frequent relocation requirements.

Manufactured from high-quality steel and protected with durable surface coatings, the silos are designed for long service life even under demanding working conditions. Each unit is equipped with an integrated aeration system, dust filter, safety valve, level sensors, and screw conveyor for continuous and reliable material discharge. Our silos can be equipped with an electronic system that allows integration with existing mobile and stationary concrete plants.

Their horizontal orientation allows for effortless transportation and quick on-site installation. In addition, maintenance and cleaning are simple and safe, as all components are easily accessible.

The discharge capacity is available in 15 m3/h, 25 m3/h, and 40 m3/h versions

standard

Numbers Behind the Performance

standard
standard

Why Our Machines Deliver More

01.

Engineered for Long-Term Reliability

Our silos are manufactured from high-quality structural steel and designed to maintain full structural integrity during continuous operation, ensuring long service life and dependable performance.

02.

Smart Integration Ready

Each silo is prepared for seamless integration with mobile mixing plants, enabling fast connection and precise, automated discharge control.

03.

Clean and Efficient Material Flow

Optimized discharge geometry, aeration systems, and dust filtration ensure smooth material flow while minimizing blockages, material loss, and dust emissions.

04.

Low Maintenance, High Availability

Designed with simplicity and durability in mind, our silos require minimal maintenance while delivering maximum uptime and reliable day-to-day operation.

05.

Transport-Friendly by Design

The silo is engineered with logistics in mind, simplifying transport, handling, and relocation between job sites.

Your Questions, Our Answers

Is the silo suitable only for cement or also for other bulk materials?

The silo is primarily designed for cement storage, but it is also suitable for a wide range of other dry bulk materials with similar physical properties. These include fly ash, lime, mineral fillers, and other fine powders commonly used in the construction industry.

Can the silo be integrated with a concrete batching plant or mobile mixing plant?

Yes, the silo can be easily integrated with both concrete batching plants and mobile mixing plants. In its standard configuration, the silo is already equipped with the necessary electrical components and interfaces that enable fast and straightforward connection to a mobile mixing plant.

What is the expected service life of the silo?

The expected service life of the silo is several decades when operated under normal conditions and with proper maintenance. The silo is manufactured from high-quality structural steel and designed in accordance with applicable international standards to ensure long-term durability and structural integrity.

How long does installation take?

For the horizontal silo, installation is extremely fast and simple. The silo is delivered as a fully pre-assembled unit and does not require special foundations or complex civil works. After positioning the silo on site, installation typically involves only mechanical positioning and basic electrical connections.

Is the discharge continuous or batch-based?

The discharge process is time-controlled. Each discharge cycle is defined by an adjustable timer, which allows precise setting of the discharge duration according to production requirements. This enables accurate and repeatable material dosing during operation.

In addition to automatic, timer-based operation, the discharge can also be started and stopped manually, providing full control and flexibility during commissioning, testing, or special operating conditions.

Get a Free Consultation and Quote

contact us

Let's Engineer Your Solution.

goran

Goran Stošić

Sales Associate

djordje

Đorđe Milanović

Service Support